Nouvel usage pour l’appartement Re01

Rénovation tout confort pour un 4P actuel

Ce 4 pièces avec balcon, situé dans un immeuble revêtu en pierre des années 40/50, nécessite d’ être adapté au besoin actuel, notamment au télétravail.  Ce couple proche de la retraite souhaite remodeler cet appartement très cloisonné. Leurs besoins vont de l’ajout d’un bureau séparé,  l’augmentation de la superficie du séjour à la création d’une cuisine ouverte.

De ses points faibles en tirer leçon

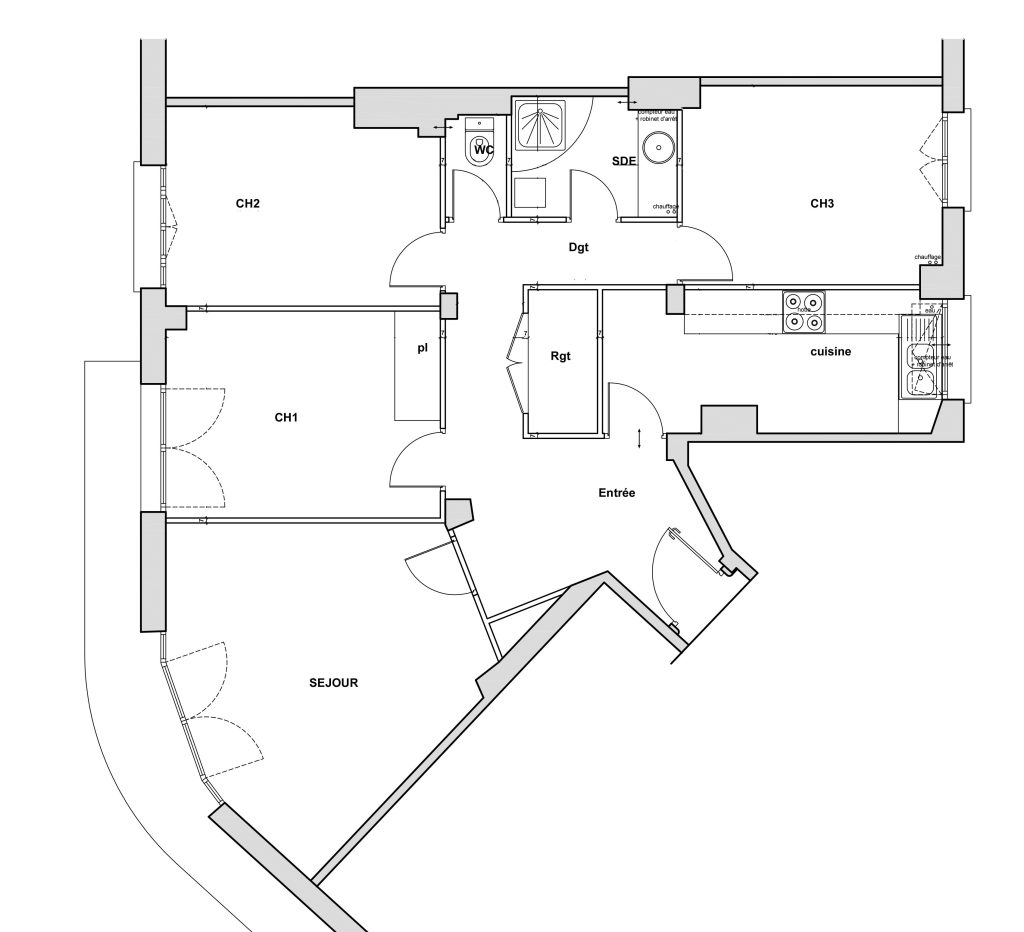
Comme tous les appartements de cette période, le logement est configuré d’une manière très cloisonnée. L’appartement est séparé en deux, avec sa partie nuit desservie par un couloir fermé et sa partie jour réunie par une entrée centrale. Et bien sûr, l’appartement a besoin d’être rafraîchi et modernisé.

L’entrée actuelle sépare la cuisine du séjour ce qui donne aux pièces des dimensions  minimales. Le séjour et deux chambres donnent au Nord et la cuisine fonctionnelle, étroite et une chambre bénéficient de la lumière au Sud.

Cette organisation mono-orientée des pièces procure un manque de lumière dans les espaces de desserte (couloir, entrée) et une lumière du Nord, froide dans le séjour et les pièces attenantes. Seules les pièces sur la cour jardin de l’immeuble orientées au Sud, cuisine et chambre bénéficient de l’apport de la lumière directe du soleil.

La salle d’eau et le WC sont situés entre les deux chambres. Sans lumière naturelle, leurs accès se font par le couloir de desserte de la partie nuit.

L’entrée au dimension importante, ne possède aucun rangement spécifique intégré. Le local débarras sert de dressing pour une chambre.

Un autre point souvent présent dans l’existant, le manque d’insonorisation. L’immeuble est mal insonorisé et une réelle amélioration doit être apportée à cet appartement.

Malgré ces contraintes, cet appartement peut être optimisé en améliorant son organisation, tout en intégrant un nouvel espace de vie utile pour le télétravail.

Ses points forts 

Situé en étage haut, au 4 ème, cet appartement est de type traversant. Il comporte une double orientation, permettant ainsi de créer une ventilation naturelle Nord/Sud en période de surchauffe et d’améliorer la diffusion de la lumière naturelle le long de la journée.  Le séjour donne sur la rue au Nord/Nord Est et se prolonge en extérieur par un balcon. La cuisine et une des chambres donnent à l’arrière sur un espace cour/jardin au Sud/Sud-Ouest.
Toutes les pièces principales hormis la salle d’eau, le WC, le couloir et l’entrée bénéficient d’un bon éclairement naturel.

Le projet 

Les clients souhaitent bénéficier d’un grand séjour en récupérant la chambre attenante. Ils veulent décloisonner et récupérer le volume de l’entrée et une partie du couloir existant afin de créer un bureau et avoir une liaison directe entre la cuisine et le séjour.

Améliorer l’appartement a consisté donc dans un premier temps à le décloisonner dans sa partie jour et à optimiser les  circulations (couloir et entrée). Le séjour double de volume en intégrant une des chambres et est relié directement avec la cuisine par une circulation fluide sans porte. La lumière naturelle provenant des deux expositions peut ainsi, parcourir les pièces sans entrave.  Sans portes, le séjour, la cuisine, le bureau, l’entrée et le couloir bénéficient de la clarté provenant des baies situées à la fois au Nord et au Sud.

L’ autre transformation est de trouver un emplacement pour un bureau fermé. La solution retenue pour le bureau est de créer un espace au centre de l’appartement, comme une gloriette.

Pour bénéficier de l’éclairage naturel provenant du séjour et de la cuisine, le bureau est délimité par une verrière sur trois cotés. Cette pièce permet de s’isoler totalement (porte et stores) mais aussi de participer à l’environnement selon les besoins.  L’éclairage naturel  ambiant du séjour et de la cuisine bénéficie  à l’éclairage du bureau.

L’entrée est optimisée avec un grand placard.  La cuisine est réorganisée selon les besoins des membres de la famille. Elle est désormais en connexion avec le séjour, donc non cloisonnée, et laisse la lumière du soleil du Sud-Ouest pénétré dans l’appartement. La couleur choisie pour les meubles est le blanc, le plan de travail est en bois, le sol en carrelage gris clair.

Dans un deuxième temps, la partie nuit, les deux chambres existantes, la salle de bains et le WC sont  réaménagés et les pièces humides sont refaites entièrement. La salle de bains et les WC intègrent des rangements. Leurs accès sont fluidifiés par des portes coulissantes. Les matériaux choisis par les clients sont sobres et élégants: bois, Corian blanc, grand carrelage veiné gris.

Dans la salle de bain, les besoins d’usages multiples dans des dimensions réduites ont nécessité de réfléchir à des astuces pour que le résultat privilégie le confort et une esthétique soignée.  Cette partie accueille une baignoire et un plan vasque nécessaire à l’usage d’une salle de bains. Un lave linge est dissimulé dans un meuble sous le plan vasque.

Le meuble bas en chêne est réalisé pour permettre d’intégrer le lave linge et répond au besoin de rangement dans une salle de bains. Un petit meuble haut sert pour le rangement de produits accessibles.

Les WC sont décorés avec les mêmes matériaux que la salle de bains.

les clients ont souhaité refaire entièrement l’électricité et remplacer les radiateurs sur chauffage central dans l’appartement.

Maîtrise d’ouvrage

Client Privé

Fiche technique

Surface : 80 m² environ

Réalisation : 4 mois d’études 5 mois de chantier – 2023/2024

AVANT TRAVAUX

CHANTIER

APRES TRAVAUX

ENTREE, BUREAU

CUISINE

SALLE DE BAINS ET WC